Epoxygulv på badeværelset: Hvad koster det? Se priser og fremgangsmåde
Skal dit badeværelse have nyt gulv, er epoxy en populær og flot løsning. Epoxygulve er kendt for deres vandtætte og slidstærke egenskaber, der gør dem vele
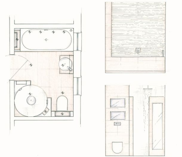
Guides, inspiration og prisoversigter til dit badeværelsesprojekt
Skal dit badeværelse have nyt gulv, er epoxy en populær og flot løsning. Epoxygulve er kendt for deres vandtætte og slidstærke egenskaber, der gør dem vele
Et betongulv kan være et stærkt, holdbart og moderigtig valg til badeværelset. Udover at give rummet et råt, industrielt look har betongulve flere praktisk
Et nyt brusearmatur eller blandingsbatteri kan give dit badeværelse et friskt og opdateret udtryk. Udskiftningen kan du ofte klare selv med lidt håndværksm
Udluftning af faldstammen er et vigtigt element i ethvert velfungerende afløbssystem. Manglende eller forkert udluftning kan føre til ubehagelige lugtgener
Utætte fuger på badeværelset er en hyppig anmærkning i tilstandsrapporter, ofte markeret med rød (tidligere kendt som K3). Det er der god grund til.
Vådrumsvinyl er vandafvisende, slidstærkt og et billigt materiale til badeværelsesgulvet. Læs mere om priser, inspiration og krav til badeværelsesgulvet. H
Vådrumssikring er en metode, der sikrer vandtæthed i rum som badeværelser, bryggers og toiletter. Dette omfatter typisk påføring af en vådrumsmembran bag f
Effektiv ventilation på badeværelset er afgørende for at undgå problemer med fugt, skimmelsvamp og dårligt indeklima. Her vil en ventilator næsten altid væ
Et nyt badeværelsesgulv med microcement koster mellem 200-300 kr. pr. m2, hvis du selv udfører arbejdet, eller 1.000-1.500 kr. pr. m2 hvis udført af certif
Ønsker du en budgetvenlig renovering af badeværelset, er et nyt badeværelsesgulv et godt sted at starte. Et nyt gulv giver badeværelset et markant ansigtsl
Et nyt toilet kan være en god investering til at nedbringe husstandens vandforbrug, ligesom det kan give badeværelset nyt liv. Prisen på montering af nyt t
Nordsjælland – herunder Hillerød, Helsingør, Lyngby, Roskilde mv. – er kendt som Danmarks mest velhavende landsdel. Tilsvarende kan landsdelen nord for København også pryde sig med nogle af Danmarks dyreste badeværelser: ifølge Jobindex lønstatistik ligger månedslønnen for en håndværker i Nordsjælland på 34.224 DKK, hvilket er 14% over landsgennemsnittet.
‘Fyn er fin‘ lyder den velkendte sangtekst fra Lasse & Mathilde tilbage fra firserne. Tilsvarende kan du få et nyt, fint badeværelse i Oden
Ifølge Jobindex Lønstatistik tjener en håndværker i hovedstadsområdet gennemsnitligt 34.288 DKK, mens den gennemsnitlige månedsløn for en håndværker
Sommerhuset er for mange et fristed, hvor man kan slappe af og nyde naturen. Men selv på få kvadratmeter fortjener badeværelset opmærksomhed. Læs, hvad det
De københavnske badeværelser i København er famøse for deres smalle design og manglende renovering. Så måske er det tid til et nyt badeværelse? Vi giver dig her et overblik over priserne på nyt badeværelse i København, de forskellige håndværkerfirmaer, de gældende regler fra Bygningsreglementet og Københavns Kommune samt tips til hvordan du sparer på renoveringen.
Hvad end man går med tankerne om helt at istandsætte sit badeværelse eller blot give det et mindre ansigtsløft, kan opgaven måske forekomme uhåndgribelig.
Et ekstra bad i kælderen er ofte en god investering og medfører ifølge undersøgelser en værdiforøgelser af boligen med op til 200% af udgiften. Hvad koster
At renovere badeværelset kan som bekendt blive en bekostelig affære. Og måske er det ikke ubegrænset, hvad der er budgetteret med for renoveringen af badev
Anlæggelse af nyt badeværelse i boligen i Aalborg og Nordjylland kan måske virke som en uoverskuelig opgave. Hvem ringer man til? Hvordan får man det bedst
Badeværelset er særligt udsat for vandskader på grund af de mange vandrør og den høje luftfugtighed. Hvis uheldet er ude, og du opdager en vandskade, er de
Hvis man ligger på et stramt budget, kan det måske virke lige lovlig optimistisk at sætte sin lid til et nyt badeværelse. Men det er ikke nødvendigvis tilf
Badeværelset er boligens mest fugtige og våde rum. Derfor er har skimmelsvamp gode vækstbetingelser på netop badeværelset. Udover at være grimt at se på og
Gulvvarme er en populær og komfortabel opvarmningsform, der giver en behagelig varme i hele rummet uden kolde gulve. Særligt på badeværelset er gulvvarme p